Content on this page requires a newer version of Adobe Flash Player.

Get Adobe Flash player

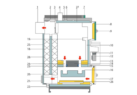
Die Hauptkomponenten des Kessels

  1. Schornsteinfuchs
  2. Wärmetauscherdeckel
  3. Schornsteinklappe
  4. Heizungsvorlauf
  5. Thermometerfühler
  6. Sicherungsthermostatfühler
  7. Kesselreglung
  8. Obere Tür
  9. Türgriff zum Schließen/Öffnen
  10. Ladekammer (Vergasungsraum)
  11. Lüfterklappe
  12. Lüfter
  13. Lüftergehäuse
  14. Düse aus Feuerbeton
  15. Einstellbare Blende für Sekundärluft
  16. Brennkammer
  17. Untere Tür
  18. Rohrwärmetauscher
  19. Primärluftkanal
  20. Abgasausgang
  21. Kesselrücklauf
  22. Ablassventil
  23. Sekundärluftkanal
  24. Wasserrost
  25. Isolierung
  26. Aschekasten
  27. Abkühlungswärmetauscher
  28. Reinigungssystem